ACHIEVEMENTS

2025
竣工

ESOLA

収納たっぷりの家

神戸市住吉東 注文住宅(神戸市住吉東)

竣工時本体価格
3,500~4,000万円
収納たっぷりの家

共働きで忙しい夫婦は、家族のために効率的で合理的な導線、収納を備えた住まいを希望されした
JR住吉駅徒歩9分という便利な場所に子育てをしながら、時間の余裕が生まれる生活のために、いろいろな仕掛けが散りばめられています

物件画像

収納たっぷりの家APPEARANCE

物件画像
3階建て住宅は、外観がのっぺりとしやすいが、一部壁をふかしたり、袖壁をうまく使って立体感のある外観デザインに仕上げています
物件画像
前庭は1mほどのスペースですが、シンボルツリーや植栽を楽しめる場所、自転車置き場など使いやすさを盛り込んでいます
また、手間がかかりすぎないように石やコンクリート、タイルなどをつかって、お手入れしやすい外構に仕上げています
門柱には、ポストと宅配ボックスが一体になった商品を採用
物件画像
ガレージは建物1階部分になり、屋根がかかっています
小さなお子様の乗り降りやお買い物の荷物も積み下ろしも安心です
駐車スペースの奥にはEVコンセントを装備しています

収納たっぷりの家STRAGE

適材適所の収納をたっぷりと

物件画像
玄関入ってすぐに建物めいっぱいの土間収納を配置。
キャンプグッズやお子様の自転車など、汚れた荷物も収納場所に困りませんね
物件画像
土間収納には、階段を下りてすぐにアクセスできます。
物件画像
キッチンの奥には3帖近いスペースのパントリー
アクセスがよく、LDKや水廻りで必要なストック類も、たっぷり仕舞うことができます
物件画像
パントリーはL字に可動棚を配置
また、パントリーからバルコニーに出ることができるので、バルコニーに設けた水道でゴミ箱を洗ったり、キッチンマットを干したり、使い勝手抜群です
物件画像
キッチンからワークス―ペースを挟んで、洗面方向にいく導線には、ファミリークローゼットを配置。
物件画像
壁で4つに仕切られてたスペースには家族の普段の服を片づけることで、洗濯導線が◎です

物件画像
洗面脱衣室に作業台スペースも配置
ちょっとした室内干しも可能な物干しバーやお風呂にはカワックもあるので、毎日のお洗濯導線も快適です

洗面台はゆったり135センチ
台下には、引出スペースとオープンスペースがあり、洗濯カゴを置いたりとゆったりとした広さです

収納たっぷりの家LIVING,DINING,KITCHEN

2階LDKと吹抜けで居心地のいい、家族の集まる場所に

物件画像
リビング部分には3帖ほどの吹抜けを設けました
高断熱高気密な住宅では、吹抜けの寒さの心配もありません
18.9帖のLDKをより広く、より明るく気持ちのいい空間にしてくれます
物件画像
キッチン前には、造作収納を配置
ダイニングテーブル付近で使いたい細々としたものもこちらに収納します

キッチン部分は天井を下げて、間接照明を配置しています
物件画像
吹抜けや3階への階段スペースなど、広さ以上の広がりのある空間になりました

収納たっぷりの家ROOM

物件画像
3階の個室には、吹抜けに面した室内窓を配置しています
家族の気配を感じるプランで、お子様の成長を見守ります

床は無垢のオークを使った突板フローリングを採用。床暖房にも対応しており、無垢の良さと質感のある逸品です

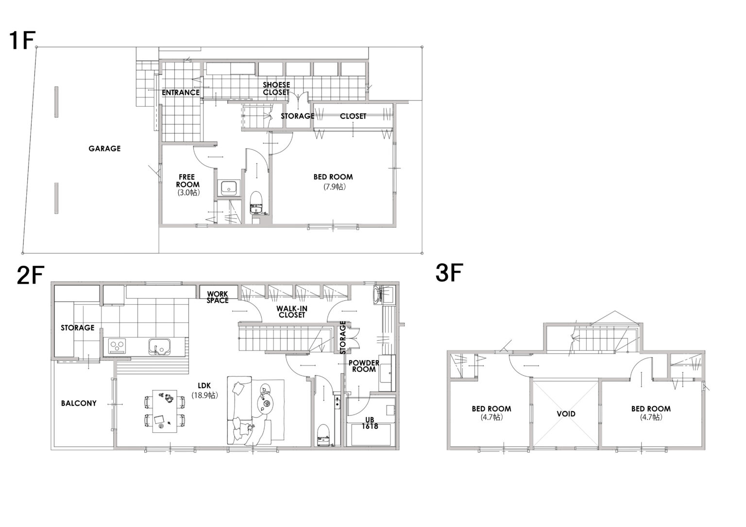
4LDK+土間収納

  • □1階床面積:61.29㎡(18.54坪)
  • □2階床面積:56.1㎡(16.97坪)
  • □3階床面積:24.53㎡(7.42坪)
  • □合計面積:141.92㎡(42.93坪)

忙しい日々も家事導線+収納導線で家族を支える

□気密性能/C値…0.38

※第1種換気(全熱交換型換気システム)

■玄関にはたっぷりの土間収納
■2階LDKは水廻りを含めた回遊導線です
■1階部分にはセカンド洗面台やトイレなどもあり、お子様との就寝時にも安心ですね

※記載の本体価格は、材料等高騰の関係で変動する場合がございます。